TBA Tiefbauamt Zug

nav
  • Suche
  • 1 Vorwort
    • 1.1 Impressum
    • 1.3 Änderungsindex
      • 1.3.1 Änderungsindex 2013
      • 1.3.2 Änderungsindex 2014
      • 1.3.3 Änderungsindex 2015
      • 1.3.4 Änderungsindex 2016
      • 1.3.5 Änderungsindex 2017
      • 1.3.6 Änderungsindex 2018
      • 1.3.7 Änderungsindex 2020
      • 1.3.8 Änderungsindex 2021
      • 1.4 Änderungsindex 2023
      • 1.4.1 Änderungsindex 2024
      • 1.5 Änderungsindex 2025
  • 2 Projektierung
    • Inhaltsverzeichnis
    • Dokumente
      • 2.1 Allgemeine Richtlinien und Wegleitungen
        • Wegleitung zu kantonalen Geobasisdaten des Tiefbauamtes
      • 2.2 Lichtsignalanlagen, Betriebs- und Sicherheitsausrüstungen
        • ATS 01 Vorschriften, Normen, Weisungen V 1.2 2010
        • ATS 07 Lichtsignalanlagen V 4.0 2023
        • ATS 07 Lichtsignalanlagen, Anhang V 1.2 2023
        • Beleuchtungsreglement für Kantonsstrassen
      • 2.3 Brücken- und Kunstbauten
        • Wegleitung Bauwerkserhaltung
      • 2.4 Signalisation, Wegweisung
      • 2.5 Strassenbau
        • Projektierungshilfe: Ausbau- und Projektierungsgeschwindigkeit
        • Projektierungshilfe: Abstände für Bäume entlang Kantonsstrassen
        • Projektierungshilfe: Geometrisches Normalprofil
        • Projektierungshilfe: Kreisel
        • Projektierungshilfe: Minimale Durchfahrtsbreiten bei Schutzinseln und Hindernissen
        • Projektierungshilfe: Sichtweiten
        • Richtlinie: Kreiselgestaltung
        • Strassennetz
      • 2.6 Wasserbau
        • Gewässerabstände / Gewässerlinie
  • 3 Oberbau
    • Inhaltsverzeichnis
    • Projektierungsgrundlagen
      • 3A Kreisel in Beton
      • 3B Bushaltestelle in Beton
      • 3C Aufbau von bituminösen Belagsschichten, Betondecken und Qualitätsanforderung
      • 3D Lärmarmer Strassenbelag
      • 3E Entnahmeplan für Bohrkerne und Mischgut
      • 3F Bushaltestellen in Asphaltbeton
      • 3G Haltestellentyp
      • 3H Bushaltebucht: Geometrie, Randabschlüsse und Konzept Betondecke
      • 3I Fahrbahnhaltestelle: Geometrie und Randabschlüsse
      • 3J Bushaltestellen: Verstärkte Tragschicht
    • Ausführungsbestimmungen
      • 3.1 Kreisel in Beton
        • 3.12 Situation
        • 3.13 Querschnitt Fahrbahn
        • 3.14 Kreiselinnenring in Beton
        • 3.17 Querfuge und Längsfuge
        • 3.19 Bewegungsfuge (B)
        • 3.21 Bewegungsfuge mit Betonschwelle (BB)
        • 3.22 Bewegungsfuge bei Abschlusssteinen
        • 3.23 Anschlussfuge Asphalt – Beton
        • 3.24 Kontrollschacht (KS) und Strassenablauf (SA) in Betonplatte
      • 3.3 Bushaltestelle in Beton
        • 3.34 Querschnitt Bushaltestelle
        • 3.35 Querfuge (Q)
        • 3.36 Bewegungsfuge beim Randabschluss
        • 3.37 Anschlussfuge Asphalt – Beton
        • 3.38 Kontrollschacht (KS) und Strassenablauf (SA) in Betonplatte
      • 3.4 Bushaltestelle in Asphaltbeton
        • 3.41 Bushaltestelle: Querschnitt mit Betonriegel
        • 3.43 Bushaltestelle: Querschnitt in Asphaltbeton
      • 3.5 Bituminöse Belagsschichten
        • 3.52 Quernaht
        • 3.53 Längsnaht
  • 4 Randabschlüsse
    • Inhaltsverzeichnis
    • Projektierungsgrundlagen
      • 4A Qualität und Ausführung von Randabschlüssen
      • 4B Randabschlusstypen
      • 4C Insel
      • 4D Begrünung von Schutzinsel
    • Ausführungsbestimmungen
      • 4.2 Pflastersteine und Bindersteine (Schalensteine)
        • 4.21 Binderstein (Schalenstein) Typ 12, Anschlag: 0 cm
        • 4.22 Binderstein (Schalenstein) Typ 12 Spez., Anschlag: 0 cm
        • 4.23 Binderstein (Schalenstein) Typ 12 Spez., Anschlag: 2 cm, schräg
        • 4.24 Binderstein (Schalenstein) Typ 12 Spez., mit Wassersteinplatte, Anschlag: 2 cm, schräg
        • 4.25 Binderstein (Schalenstein) Typ 12 Spez., Anschlag: 6 cm
        • 4.26 Binderstein (Schalenstein) Typ 12 Spez., mit Wassersteinplatte, Anschlag: 6 cm
        • 4.27 Binderstein (Schalenstein) Typ 12 Spez., Anschlag: 6 cm
        • 4.28 Binderstein (Schalenstein) Typ 12 Spez., mit Wassersteinplatte, Anschlag: 6 cm
        • 4.29 Bindersteine (Schalensteine) 3-reihig bei Trottoirüberfahrten, Anschlag: 2 cm, schräg
        • 4.30 Binderschicht (Schalenstein) Typ 12 bei Trottoirüberfahrten, Anschlag: 0 cm
        • 4.31 Binderschicht (Schaltenstein) Typ 12 bei Trottoirüberfahrten, Anschlag: 2 cm, schräg
      • 4.4 Stellplatten und Stellsteine
        • 4.41 Stellplatte Typ SN 8, Anschlag: 6 cm
        • 4.43 Stellstein Typ SN 12, Anschlag: 6 cm
        • 4.44 Stellstein Typ SN 12 mit Wassersteinplatte, Anschlag: 6 cm
      • 4.5 Randsteine
        • 4.51 Randstein Typ RN 15, Anschlag: 2 cm, schräg
        • 4.52 Randstein Typ RN 15 mit Wassersteinplatte, Anschlag: 2 cm, schräg
        • 4.55 Randstein Typ RN 15, Anschlag: 6 cm
        • 4.56 Randstein Typ RN 15 mit Wassersteinplatte, Anschlag: 6 cm
      • 4.6 Inselsteine
        • 4.61 Inselstein einbetoniert
        • 4.62 Inselstein auf Binderschicht geklebt, nach Einbau Deckbelag
        • 4.63 Steine auf Betondecke geklebt
        • 4.64 Stellplatte Typ SB/SN 8 bei Insel, einbetoniert
        • 4.65 Stellplatte Typ SB/SN 8 bei Insel, auf Binderschicht geklebt, nach Einbau Deckbelag
        • 4.66 Steine auf Betondecke geklebt
        • 4.67 Inselstein einbetoniert
        • 4.68 Inselstein auf Binderschicht geklebt, nach Einbau Deckschicht, Wartebereich
        • 4.69 Inselstein auf Betondecke geklebt, Wartebereich
      • 4.7 Bitumenhaltige Abschlüsse
        • 4.71 Belagsrand
        • 4.72 Asphaltbord
        • 4.73 Bankettausführung
        • 4.74 Schale auf bitumenhaltigem Material
      • 4.8 Sonderbordsteine
        • 4.82 Sonderbordstein mit Wasserführung, Anschlag: 16  cm
        • 4.84 Sonderbordstein mit Wasserführung, Anschlag: 22  cm
        • 4.86 Sonderbordstein mit Wasserführung, Übergang 22/16  cm
        • 4.87 Geometrie Sonderbordsteine
      • 4.9 Verarbeitungshinweise
        • 4.91 Absenkungen
        • 4.92 Bewegungs- und Mörtelfugen
  • 5 Strassenentwässerung
    • Inhaltsverzeichnis
    • Projektierungsgrundlagen
      • 5A Belastungsklassen und Anordnung
      • 5B Zulässige Produkte für die Strassenentwässerung
      • 5C Einbaukonzept Schachtoberbau
      • 5D Schachtleitern
      • 5E Leitungsbau
    • Ausführungsbestimmungen
      • 5.2 Kontrollschächte (KS)
        • 5.21 Kontrollschacht Fahrbahn, Rad-/Fussweg und Trottoir, D400, Schachtabdeckung höhenverstellbar
        • 5.24 Kontrollschacht, Grünstreifen und PW-Parkflächen, C250
      • Strassenabläufe (SA)
        • 5.31 Strassenablauf DN 600 Typ 1, D400 (Standard)
        • 5.32 Strassenablauf DN 600 Typ 2, D400
        • 5.33 Strassenablauf DN 600 Typ 3, D400
        • 5.34 Strassenablauf DN 600 Typ 4, D400 (Nische)
        • 5.35 Schluckschacht DN 600 Typ 5, D400
        • 5.36 Strassenablauf DN 600 Typ 6, D400 (Grünstreifen)
        • 5.37 Strassenablauf DN 600 Typ 7, C250 (Belagsschale)
        • 5.38 Strassenablauf DN 600 Typ 8, C250 (Betonschale)
        • 5.39 Strassenablauf DN 600/800 Typ 9, D400 (Filtersack)
        • 5.40 Schlammsammler DN 600/800 Typ 10, D400 (Filtersack)
      • Entwässerungsrinnen
        • 5.51 Schwerlastrinne, C250
  • 6 Werkleitungen
    • Inhaltsverzeichnis
    • Projektierungsgrundlagen
      • 6A Belastungsklassen und Anordnung
      • 6B Darstellung von Werkleitungen
      • 6C Zulässige Produkte für die Werkleitungen
      • 6D Rohrverlegung
      • 6E Einbaukonzept Schachtoberbau
    • Ausführungsbestimmungen
      • Schächte rund
        • 6.21 Schachtoberbau
        • 6.22 Werkleitungsschacht DN 600, Typ A
        • 6.23 Werkleitungsschacht DN 600/800, Typ KK
        • 6.24 Werkleitungsschacht DN 600/1000, Typ KG
        • 6.26 Anschlussrohr für Detektor
        • 6.27 Anschlussrohr für GFS-Bodensonde
      • Schächte eckig
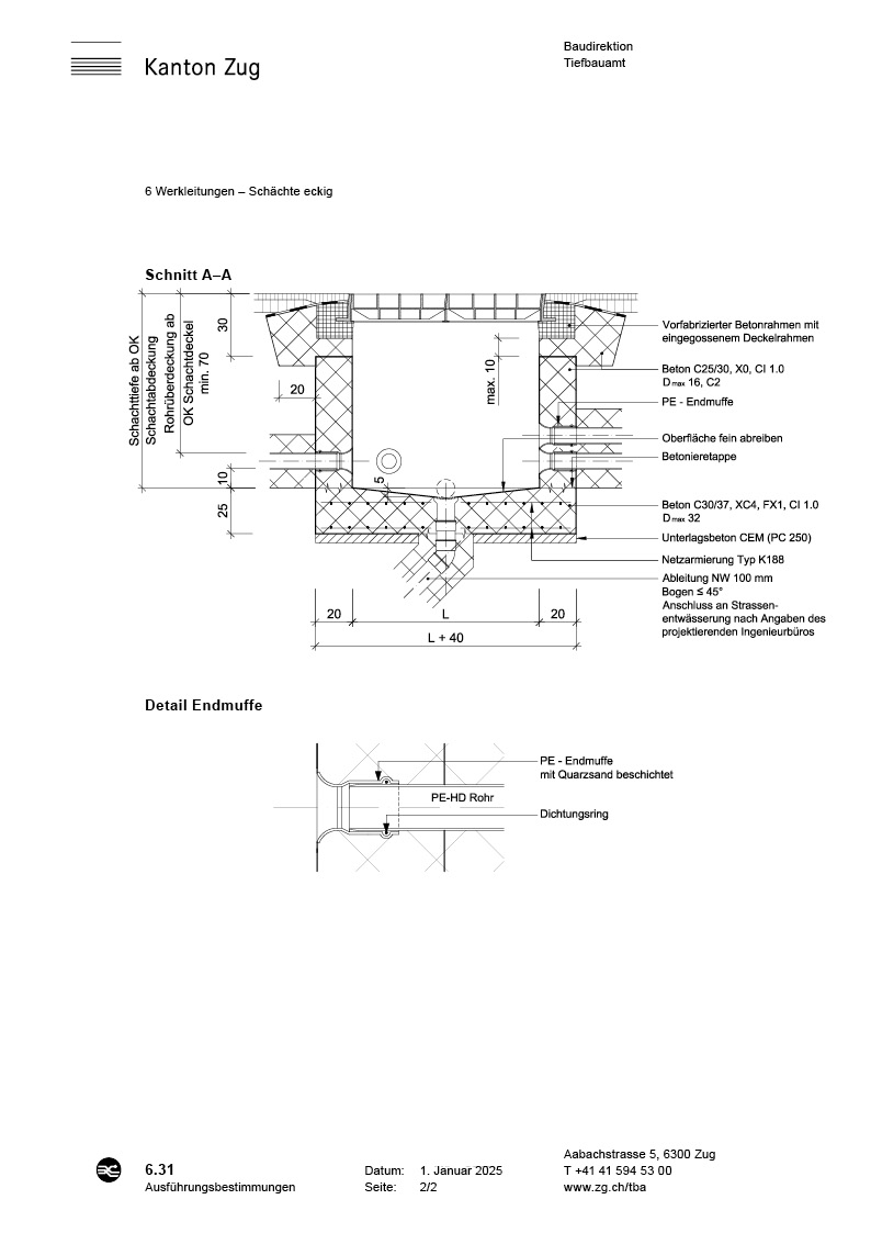
        • 6.31 Zugschacht, Typ Z
        • 6.32 Muffenschacht, Typ M
  • 7 Beleuchtung & Lichtsignale
    • Inhaltsverzeichnis
    • Projektierungsgrundlagen
      • 7A Planung
      • 7B Anordnung von Beleuchtungsmasten
      • 7C Darstellung von Beleuchtung/Lichtsignalanlagen
      • 7D Zulässige Produkte für Beleuchtung/Lichtsignalanlagen
      • 7E Planung und Ausführung von Induktionsschleifen
    • Ausführungsbestimmungen
      • Strassenbeleuchtung
        • 7.21 Fundament für Beleuchtungsmast LPH bis 8 m
        • 7.22 Fundament für Beleuchtungsmast LPH 10 m
        • 7.23 Fundament für Beleuchtungsmast mit Bodenflansch LPH bis 8 m
        • 7.24 Fundament für Beleuchtungsmast mit Bodenflansch LPH bis 10 m
      • Signalmast
        • 7.31 Fundament für Signalmast 200
        • 7.32 Fundament für Signalmast 300
      • Kabinenfundament
        • 7.41 Kabinenfundament für Steuergerät
  • 8 Signalisation & Markierung
    • Inhaltsverzeichnis
    • Projektierungsgrundlagen
      • 8A Planung
      • 8B Fussgängerstreifen
      • 8C Plandarstellung
      • 8D Materialliste
    • Ausführungsbestimmungen
      • Signalisation
        • 8.21 Anordnung von Signalen
        • 8.22 Fussgängerstreifen/Fussgängerübergänge
        • 8.23 Inselschutzpfosten
        • 8.24 Leitpfosten
        • 8.25 Zulässige Produkte für die Signalisation
        • 8.26 Schneestangenfundamente
      • Markierung
        • 8.31 Arten von Markierungen
        • 8.32 Mindestanforderungen
        • 8.33 Anwendungen von Markierungen
        • 8.34 Anwendungsbereiche

6.31 Zugschacht, Typ Z

« » PDF

© 2013 – 2016 Kanton Zug Tiefbauamt

  • Kontakt