TBA Tiefbauamt Zug
nav
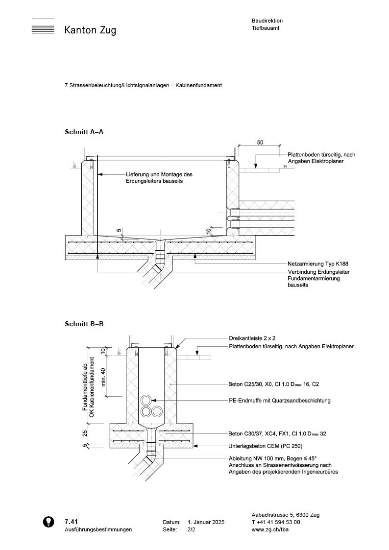
7.41 Kabinenfundament für Steuergerät
«
1
/
2
»
PDF